建筑、机械专业部合作——助力备战省赛
日期:2022-04-29 作者:[db:作者] 来源:总站 浏览量:9984

为全力备战第一届四川省技工院校职业技能大赛,德阳安装技师学院特购置了一台大型切割机,以全力保证建筑专业部参赛选手第二阶段的训练。
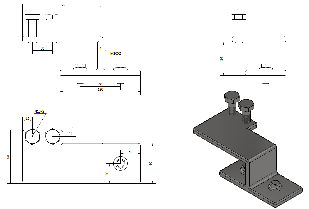
据悉,由于第二阶段训练需要对砖块斜面切割,在利用切割机对砖块的切割过程中,参赛选手薛力遇到难题。“当砖块切割过程中,整砖切成半砖很容易实现,但是半砖在切成80*小块时,砖块由于只有一个支点,难以固定,容易在切割是产生偏转,从而造成质量问题和安全问题。”薛力介绍到,建筑专业部指导老师闻讯后立刻联系了机械专业部进行研究解决,在机械专业部蒋钦铎和肖旭东两位老师的带领下,由机械专业部18焊接沈子皓同学和建筑专业部选手薛力共同努力下,根据切割机的特性研发出砖块夹具,在使用过程中,经过无数次的修改和打磨,最终解决了砖块在切割机上面固定的问题。
通过建筑专业部和机械专业部紧密配合,开展的砖块夹具的研发行动,进一步提升学生的实际操作能力和参赛选手的备赛效率,促进德阳安装技师学院高质量备赛。
据悉,由于第二阶段训练需要对砖块斜面切割,在利用切割机对砖块的切割过程中,参赛选手薛力遇到难题。“当砖块切割过程中,整砖切成半砖很容易实现,但是半砖在切成80*小块时,砖块由于只有一个支点,难以固定,容易在切割是产生偏转,从而造成质量问题和安全问题。”薛力介绍到,建筑专业部指导老师闻讯后立刻联系了机械专业部进行研究解决,在机械专业部蒋钦铎和肖旭东两位老师的带领下,由机械专业部18焊接沈子皓同学和建筑专业部选手薛力共同努力下,根据切割机的特性研发出砖块夹具,在使用过程中,经过无数次的修改和打磨,最终解决了砖块在切割机上面固定的问题。
通过建筑专业部和机械专业部紧密配合,开展的砖块夹具的研发行动,进一步提升学生的实际操作能力和参赛选手的备赛效率,促进德阳安装技师学院高质量备赛。
供稿:建筑专业部